Property Detail

2 Novilla

Laguna Niguel CA 92677

$1,975,000

Status: Active

Property Details

Description

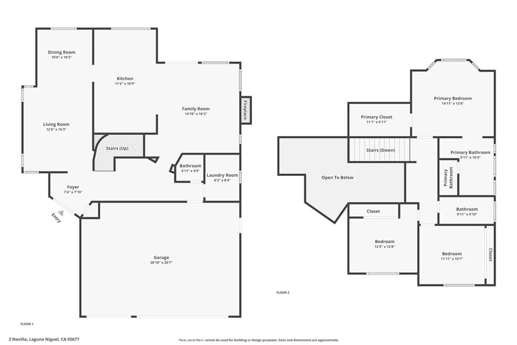
First time on the market! Welcome to 2 Novilla, a rare opportunity to own a coveted TROPHY OCEAN VIEW LOT| REPIPED | UPGRADED in the coastal community of Marina Hills! This meticulously maintained and updated home offers breathtaking expansive ocean and sunset views straight down the Salt Creek corridor from its premier cul-de-sac location! Step inside to soaring ceilings, gorgeous French oak wide planked hardwood flooring, cozy ledger stone fireplace and a stunning custom staircase featuring modern rod iron and oak railings. The light-filled kitchen boasts high ceilings, abundant storage, a sleek stainless-steel sink, plus newer stainless steel KitchenAid appliancesperfect for everyday living and entertaining. The home has been thoughtfully upgraded with newer replacement dual-pane windows, PEX repipe, fresh exterior paint, newer AC/HVAC, epoxy-finished garage, and more! Upstairs, the spacious primary suite showcases vaulted ceilings, a large walk-in closet, and a resort-inspired remodeled bathroom featuring travertine finishes, heated floors, dual sinks, heated towel rack, and a luxurious soaking tub. The secondary bedrooms are generous in size with vaulted ceilings, complemented by a beautifully remodeled secondary stone tiled bathroom with tiled wainscot. Outside, enjoy a RARE private wraparound yard with a charming pergola-covered patio where you can unwind and capture endless coastal sunsets and ocean views. Located in the highly desirable Marina Hills community, residents enjoy resort-style amenities including clubhouse, Jr Olympic pool, spa, tennis and pickleball co

Map Location

Listing provided courtesy of Linda Fong of Coldwell Banker Realty. Last updated . Listing information © 2025 PACIFICSOTHEBYSFULLSANDICORCOMBINED.

Fara Fashandi

Fara Fashandi

DRE# 01339461
Inquire Now
admin Real estate 9:00 AM - 5:00 PM 9:00 AM - 5:00 PM 9:00 AM - 5:00 PM 9:00 AM - 5:00 PM 9:00 AM - 6:00 PM 9:00 AM - 5:00 PM 9:00 AM - 5:00 PM https://static.royacdn.com/Site-d5ebc506-f6d5-4a07-b5f2-dbcf57f7639a/homepage/fara_headshot.jpg realtor # # # https://static.royacdn.com/Site-d5ebc506-f6d5-4a07-b5f2-dbcf57f7639a/homepage/fara_headshot.jpg 28207