Property Detail

2660 San Vicente

Long Beach CA 90815

$1,299,000

Status: Active

Property Details

Description

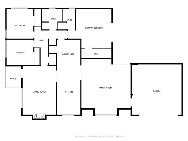
Stunning Los Altos Home – Corner lot, Pool, Solar & Style!!!! WELCOME to this beautifully remodeled 3-bedroom, 2-bath home in the highly desirable Los Altos neighborhood of Long Beach. Offering 1,788 sq. ft. of thoughtfully designed living space, this residence blends modern upgrades with timeless charm. Step through the stunning Dutch door into a bright, open floor plan featuring lovely hardwood floors, cozy fireplace w/custom Mantle, crown molding, and custom built-ins. The kitchen is a true showpiece with concrete countertops, updated appliances, and a built-in dining bench—perfect for casual meals and conversation. The kitchen/dining area flows seamlessly into the family room, which showcases cathedral ceilings, custom built-ins and an abundance of natural light, creating the perfect setting for both relaxing and entertaining. Every detail has been tastefully curated, including an upgraded electrical panel, paid-off solar panels, recessed lighting, custom plantation shutters and high-quality finishes throughout. Step outside to your own private backyard oasis, complete with a sparkling in-ground pool, spa, and barbecue island—ideal for gatherings and warm California evenings. A side yard provides extra space for pets or play, and the corner lot adds both privacy and curb appeal. An attached two-car garage completes this exceptional property, located near top-rated schools, parks, shopping, and dining. Experience the perfect balance of comfort, style, and convenience in this Los Altos gem.

Map Location

Listing provided courtesy of Jennifer Pok of Trends RE Inc.. Last updated 2025-11-05 09:18:30.000000. Listing information © 2025 CRMLS.

Fara Fashandi

Fara Fashandi

DRE# 01339461
Inquire Now
admin Real estate 9:00 AM - 5:00 PM 9:00 AM - 5:00 PM 9:00 AM - 5:00 PM 9:00 AM - 5:00 PM 9:00 AM - 6:00 PM 9:00 AM - 5:00 PM 9:00 AM - 5:00 PM https://static.royacdn.com/Site-d5ebc506-f6d5-4a07-b5f2-dbcf57f7639a/homepage/fara_headshot.jpg realtor # # # https://static.royacdn.com/Site-d5ebc506-f6d5-4a07-b5f2-dbcf57f7639a/homepage/fara_headshot.jpg 28207